Freedom Builder Homes Blog

February 13, 2026

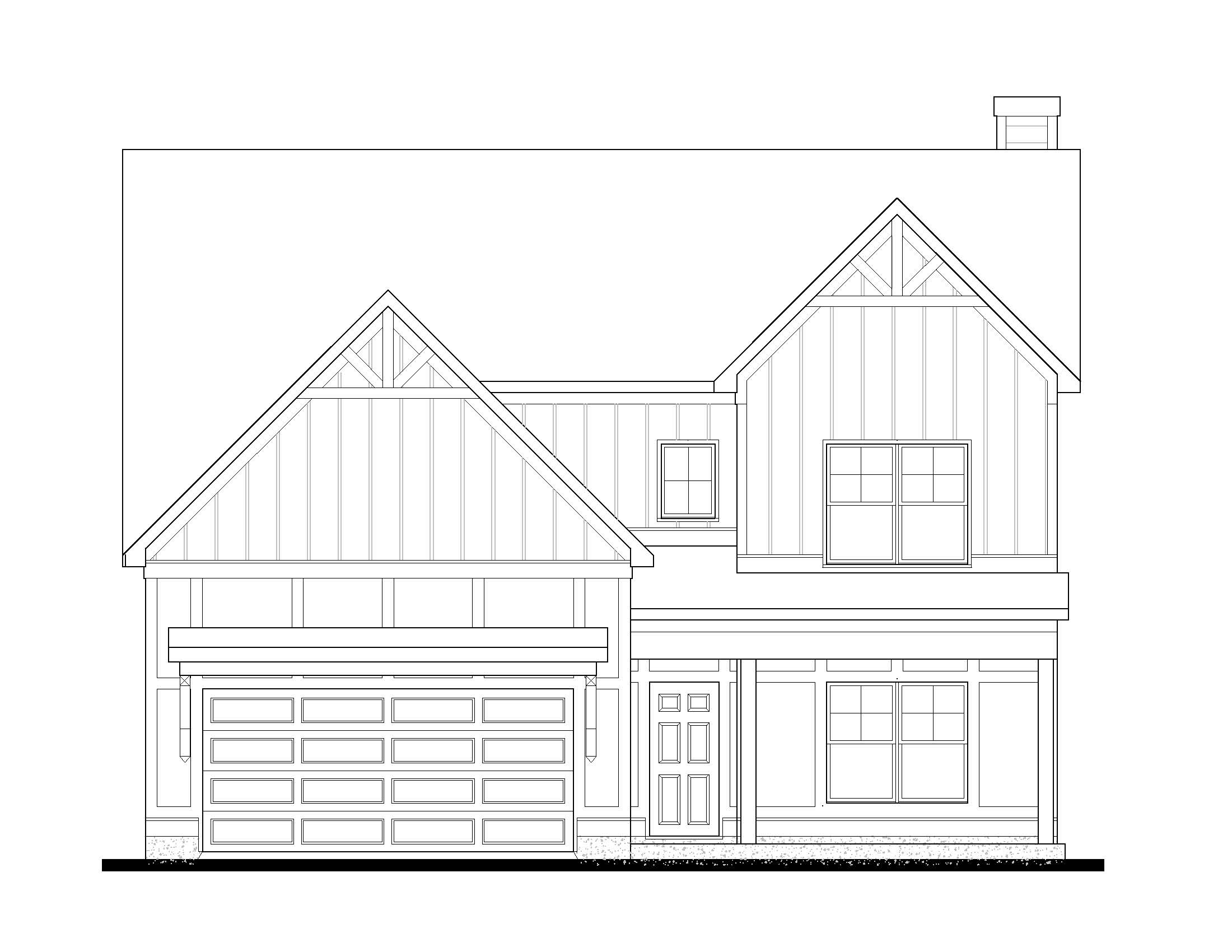
Mantle A FE


Keep Reading